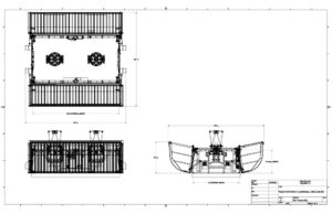
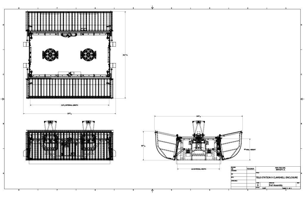
The Tele-Station 9 Clamshell Enclosure design satisfies a viewing requirement that the instrument in the enclosure can access views from horizon to horizon in 360 degrees, which is optimal in satellite tracking and astronomical observation. Unlike traditional round clamshell domes, the Tele-Station 9 Clamshell enclosure has a rectangular base that allows multiple instruments to be housed and not just one instrument in the center. Construction consists of an all-aluminum frame and a galvalume sheet metal skin for maximum corrosion resistance and stainless-steel fasteners. Unlike fiberglass constructed clamshell domes, the galvalume metal skin is UV resistant, has a 50-year colorfast rating and is more rugged than fiberglass. The galvalume skin is available in a choice of colors.
The Tele-Station 9 Clamshell Enclosure is currently available in two sizes, size one has an internal length of 10 feet and an internal width of 9.5 feet. The larger version has an internal length of 18 feet and an internal width of 9.5 feet. The larger version can house 2 instruments as shown in the drawing below.
The Tele-Station 9 Clamshell Enclosure can also be made mobile similar to our Star Traveler mobile observatory with a internal length of 15 feet and internal width of 7 feet. It contains a pier isolation system that isolates the instrument from the floor of the trailer providing fully functional, and transportable satellite tracking system. The pier isolation system eliminates vibrations from external forces from making their way to the instrument such as wind.
The Tele-Station 9 Clamshell Enclosure has a motor system that can be automated and controlled remotely to allow opening and closing of the clamshell from a distance. The TS9 controller is ASCOM compliant and also open source which allows custom programming to your application


